Viña del Mar restringe desarrollo urbano en dunas
Buen día. La semana pasada estuvo cargada de acontecimientos. Tuvimos el simulacro de sismo y tsunami, organizado por Senapred, que movilizó a 150 mil personas. Hubo protestas del sindicato de estibadores del Puerto de Valparaíso, quienes exigiendo mejoras laborales provocaron barricadas en el Barrio Puerto. Y el fin de semana se celebró el Festival Mil Tambores y se realizó la undécima versión de la Puma Maratón de Viña del Mar, carrera en la que participaron alrededor de 14 mil competidores.
Dicho eso, ¿qué noticias trae la edición de esta semana?
- En Viña del Mar, el municipio restringió el desarrollo urbano en el sector de las dunas mediante la promulgación de un nuevo PRC, con críticas de ambientalistas y del sector inmobiliario.
- EFE Valparaíso seguirá aumentando el número de sus guardias tácticos. El plan de seguridad ha dado resultados pues, entre otras cosas, ha logrado cero evasión, lo que ha sido valorado por los usuarios.
- El Servel rechazó reembolsar al excandidato a gobernador regional, Francesco Venezian (Partido Republicano), los $ 368 millones que gastó en su campaña por «errores y omisiones graves». El Servicio objetó el pago fuera de plazo a una empresa de comunicaciones que no solo le prestó servicios digitales a Venezian, sino a otros ocho candidatos a consejeros regionales.
- La Corte de Apelaciones ordenó el desalojo de la megatoma de San Antonio, luego del fracaso de la negociación para una compra colectiva mediante cooperativas. Pero antes, el municipio debe disponer un albergue para 10 mil personas.
- El escritor Cristóbal González presentó en Valparaíso su último libro: Lo que hay que soñar, hay que vivirlo. Una crónica musical sobre El Macha. En el conservatorio, adelantó pasajes inéditos de la publicación que reconstruye el recorrido del líder de La Floripondio, Chico Trujillo y El Bloque Depresivo.
Recuerda que los lunes a las 15:00 nos pasamos al formato radial y revisamos las noticias de este newsletter por Radio Valentín Letelier. Sintoniza la señal online o la 97.3 FM.
- Y si no te has inscrito para recibir recibir este boletín, puedes hacerlo en el siguiente enlace: Inscríbete gratis.
Viña del Mar restringe desarrollo urbano en el sector de las dunas

24-08-2023. Campo dunar en Viña del Mar. Foto: Pablo Ovalle / AgenciaUno.
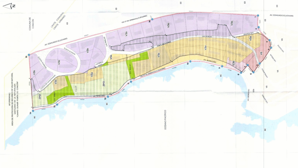
El 1 de octubre comenzó a regir la modificación al Plan Regulador Comunal (PRC) para el sector Reñaca Norte Costa, en Viña del Mar. El nuevo instrumento, promulgado vía decreto por la alcaldesa Macarena Ripamonti (FA), restringe el desarrollo urbano en una franja que limita al norte con el Santuario de la Naturaleza Campo Dunar de la Punta de Concón (de cuyas 30 hectáreas, 2 son viñamarinas), considerando los ya conocidos riesgos de remoción en masa.
- La reforma fue impulsada luego de los socavones producidos entre 2023 y 2024, que pusieron en peligro a los residentes de los edificios más próximos y obligaron al municipio a desalojarlos y a decretar su inhabitabilidad. Con ella, «estamos dando pasos concretos hacia la protección real de las dunas, reconociéndolas no solo como entornos naturales excepcionales, sino también como barreras estratégicas frente a riesgos y desastres naturales”, dijo Ripamonti.
El seccional se extiende desde el límite con Concón hasta la altura del mirador de la playa Cochoa y establece tres nuevos sectores: las áreas V3-a y V3-b, que admiten viviendas de hasta tres y ocho pisos; y la Zona de Paisaje Dunas, que prohíbe expresamente el uso residencial, autoriza equipamiento cultural, científico o deportivo de hasta dos pisos, y espacios públicos y áreas verdes.

Polígono sujeto a la modificación.
Antes del cambio, la altura máxima en el lugar era de hasta 24 pisos, siempre y cuando la inclinación del terreno no superara los 29°. En ese caso, permitía inmuebles aterrazados, de entre tres y cuatro pisos.
- El nuevo PRC también restringe el porcentaje de construcciones subterráneas y exige que toda obra debe situarse a 10 m del Santuario. Este límite es “insuficiente” por la ONG Duna Viva. Su abogado, Gabriel Muñoz, recuerda que un fallo de la Corte Suprema (2019) fue más exigente y estableció que todo proyecto, ubicado a 100 m del área protegida, debe presentar un estudio de impacto ambiental.
En paralelo a la entrada en rigor del nuevo instrumento, el municipio descongeló los trámites para obtener permisos de obra para el sector, lo cual se mantenía detenido desde octubre de 2024.
- Las autorizaciones otorgadas previo a ello siguen vigentes. Solo entre julio de 2021 y octubre de 2023, la Dirección de Obras Municipales había admitido 31 proyectos en toda el área de la duna holocénica, que incluye el polígono sujeto a la modificación. La medida tampoco influye a edificios paralizados por órdenes judiciales, como Makroceano o Alto Santorini.
El gran afectado es la inmobiliaria Miramar, comenta Rodrigo Andreucci, abogado asesor del proyecto Makroceano. Esa empresa, dice, “compró con crédito de $6 mil millones, financiado por el Banco de Chile, seis casas en calle Las Ágatas y quedó justo en el polígono. O sea, perdió la inversión. Todos los otros terrenos tienen proyectos ingresados desde antes. Algunos están tramitando su Resolución de Calificación Ambiental”.
- Andreucci advierte, eso sí, que el nuevo instrumento impediría reparar edificios afectados, por ejemplo, por un terremoto, lo que “va a encarecer los seguros sobre los bienes comunes y de siniestros para las propiedades del sector».
EFE Valparaíso seguirá aumentando sus guardias tácticos

Guardias tácticos de EFE Valparaíso. Foto: Agencia Uno.
Durante el 2023, el número de incidentes mensuales -como riñas, grafitis y evasiones- se había duplicado en EFE Valparaíso. Carabineros, por su parte, también había reportado un aumento en las detenciones por robos, hurtos y lesiones al interior del único servicio de tren de pasajeros de la Región de Valparaíso.
- Para enfrentar esta situación, la empresa ha desplegado un intenso plan de seguridad integral, que incluye la contratación de guardias tácticos y modificaciones a la infraestructura de las estaciones, que dificultan el paso a evasores. Para ello reforzaron y ampliaron los cierres perimetrales, e instalaron paneles al borde de escaleras y estructuras sobre los torniquetes.
Estos profesionales llegaron a la empresa en noviembre de 2024 para complementar el trabajo de los asistentes de trayecto y de los vigilantes privados, que fiscalizan trenes y estaciones. Su objetivo ha sido reducir incivilidades y controlar la evasión, reconduciendo a infractores a los torniquetes o boleterías, e impedir el ejercicio de músicos y de vendedores ambulantes.
- Su trabajo ha dado resultados: “La fiscalización que efectúan los guardias tácticos ha permitido una reducción muy importante en la evasión, llegando a cero en los lugares en que se realiza el control”, dijo a este medio Francisco Núñez, gerente de Operaciones de Servicios de EFE Valparaíso. En enero de 2025, el contingente contratado aumentó en un 40% “y en 2026 está proyectado un incremento de un 30% más”, agregó.
DD.HH. “Todas las labores destinadas a impedir y desalojar las instalaciones operativas de las personas que infringen el Reglamento de Pasajeros, se realizan con irrestricto respeto de los DD.HH. de cada una de las personas involucradas”, aseguró el gerente. Según la empresa, “no ha habido pasajeros lesionados producto de la intervención de estos equipos”; no obstante, “sí se han registrado agentes de seguridad lesionados debido a agresiones”.
- En casos puntuales, la reacción de los infractores ha requerido la intervención de Carabineros, por agresiones y/o amenazas al personal, y este año han detenido a 59 personas. La cifra representa el 0,4% de todos los controles realizados.
La recepción de los usuarios a este plan “ha sido mayoritariamente positiva”, indicó Núñez, pues las personas “se sienten más resguardados y perciben que se está haciendo un esfuerzo concreto por terminar con prácticas que les incomodan como la venta ambulante y la evasión”.
Servel rechaza rendición de campaña de candidato a gobernador del Partido Republicano

28-08-2024. Lanzamiento de la campaña a alcalde de Valparaíso de Rafael González. En la foto, de izquierda a derecha: la diputada Chiara Barchiesi, el candidato presidencial José Antonio Kast, González, el entonces candidato a gobernador regional Francesco Venezian, el candidato al Senado por Valparaíso Arturo Squella y el diputado Luis Sánchez. Foto: Pablo Ovalle / Agencia Uno.
Por “errores y omisiones graves”, el Servel rechazó la cuenta de ingresos y gastos electorales de la campaña del excandidato a gobernador regional de Valparaíso, por el Partido Republicano, Francesco Venezian. Según informó el medio Reportea, el organismo rechazó su declaración por $368 millones, por lo que no recibirá reembolso fiscal en virtud de los votos que obtuvo como candidato en la elección de octubre de 2024.
- Venezian logró 185.292 votos (16% de lo sufragios) y quedó en tercer lugar detrás de María José Hoffmann (UDI) y el actual gobernador Rodrigo Mundaca (Ind-FA). Si bien solicitó $ 368 millones de reembolso, el Servel, en función de su votación, solo podía reembolsar cerca de $ 178 millones.
Venezian rindió sus gastos después de las elecciones y el 3 de enero el Servel observó 11 irregularidades. El republicano presentó sus descargos y le subsanaron 7 (le quedaron 4). En su veredicto, el 9 de abril, el Servicio dictaminó: “Recházase, por errores y omisiones graves, la cuenta general de ingresos y gastos electorales de don Francesco Venezian Urzúa”, citó Reportea.
- Según el mismo medio, el expediente de fiscalización de la rendición de ingresos y gastos de la campaña de Venezian indica que se detectaron una serie de irregularidades en los pagos a proveedores: desde gastos injustificados y fuera del plazo legal, hasta el pago de $ 220 millones a una sociedad (Blue Digital Servicios Marketing S.A), por prestar servicios no solo a Venezian, sino otras ocho candidaturas del Partido Republicano al Consejo Regional de Valparaíso.
¿Cuáles? Las de los candidatos John Byre, Elsa Bueno, Paulina Yáñez, Felipe Córdoba, Mauricio López, Victoria Figueroa, Cristián Pinilla y Nicolás Cristoffanini. De ellos, Bueno, Yáñez, Cordoba, López y Pinilla resultaron electos.
- El citado medio asegura que el panorama para Venezian es complejo, pues «parte de los dineros que solicitaba reembolsar eran para solventar un crédito de más de $ 200 millones que solicitó al Banco Consorcio. El contrato de ese préstamo, al que Reportea accedió, establece que si Venezian no obtenía el reembolso fiscal estaría ‘obligado a pagar el saldo del crédito con recursos propios’».
Apelación. El 29 de mayo, Venezian impugnó la resolución del Servel al Tribunal Calificador de Elecciones, señalando que el rechazo de sus cuentas “se ampara en interpretaciones” del Servicio. Todavía está pendiente la sentencia.
Un mensaje de la Universidad de Valparaíso
Universidad de Valparaíso invita a toda la comunidad estudiantil de la región a asistir a la Expo UV 2025
Como es tradicional, la Universidad de Valparaíso convoca a jóvenes de toda la región a asistir a la Expo UV, la feria en que presenta su completa oferta académica para el proceso de admisión 2026 y que este año se desarrollará nuevamente en el Polo Playa Ancha, con sede en la Facultad de Arquitectura, avenida El Parque 570, el martes 14 y miércoles 15 de octubre, de 09:00 a 14:00 horas.
Se espera que la asistencia de público supere la registrada en las versiones anteriores, que han superadolas cinco mil personas.
Según expresó el rector Osvaldo Corrales, este evento ferial “es la principal vitrina que nuestra institución tiene para mostrar a las y los estudiantes de enseñanza media de nuestra región su oferta académica. Invitamos a todos y todas para que la Universidad de Valparaíso siga siendo la universidad más postulada de la región”.
Por su parte, el director de Extensión y Comunicaciones, Osvaldo Bizama, afirmó que “la Expo UV es sin duda un verdadero hito cada año para la Universidad deValparaíso, que permite congregar a la totalidad de nuestras carreras, para poner a disposición nuestra oferta académica para las y los jóvenes de la región que aspiran a acceder a la universidad”.
Añadió que este “si bien esta es una actividad de promoción universitaria, la Universidad de Valparaíso desde siempre la ha asumido con mucha responsabilidad, con gran honestidad, para relevar lo que somos: una institución tradicional, pública, regional y que ha alcanzado un posicionamiento importante en el sistema de educación superior chileno”.
Cerró el director afirmando que “la Expo UV se ha consolidado como la feria vocacional más importante que se desarrolla en la región, y en ese sentido nos sentimos tremendamente orgullosos. Invitamos a toda la comunidad estudiantil de la región a participar de este gran evento”.
La Expo UV 2025 se desarrollara en el Campus Santiagoel martes 21 de octubre, y en San Felipe el miércoles 21 de octubre, en ambos casos de 10:00 a14:30 horas.
Corte ordena concretar desalojo de megatoma en San Antonio

03-09-2025. Megatoma en San Antonio. Foto: Sócrates Orellana / Uno Noticias.
La Corte de Apelaciones de Valparaíso accedió a la solicitud de los dueños del terreno ocupado por la megatoma de San Antonio, Esteban Posada y Ricardo Solari, de dar curso al fallo de ese mismo tribunal de junio de 2023 -ratificado por la Corte Suprema en marzo del 2024-, el cual ordenó el desalojo de sus 10 mil ocupantes «de forma razonable y paulatina».
- Los propietarios pidieron activar la sentencia el 11 de septiembre pasado, luego del fracaso de las negociaciones con el Gobierno, que se extendieron por seis meses y buscaron una fórmula para que el privado vendiera el predio de 215 hectáreas a 40 cooperativas de pobladores. Así, entonces, pidieron ordenar el desalojo inmediato con auxilio de la fuerza pública.
La resolución fue dictada pese a que el Ministerio del Interior señaló recientemente a la Corte que la desocupación del terreno es inviable «en estos momentos y en los términos planteados por los recurrentes».
- En todo caso, el tribunal accedió a la solicitud «previo cumplimiento de las obligaciones establecidas en la sentencia dictada por la Corte Suprema», la cual dispuso que «el municipio, en coordinación con las carteras ministeriales correspondientes, deberá implementar de manera transitoria un recinto que reúna las condiciones adecuadas donde las personas desalojadas sean albergadas o cobijadas con posterioridad al lanzamiento».
Desde Interior informaron que, luego del fracaso de la negociación, volvió a sesionar la mesa de coordinación para concretar el desalojo. En la instancia evalúan alternativas para, entre otras cosas, habilitar un albergue.
En Valparaíso presentan crónica musical sobre «El Macha»

01-10-2025. Foto: José Veas Tapia / Centex.
El miércoles en Valparaíso «volaban las protestas«: los portuarios cortaban calles y se enfrentaban con Carabineros. Pero eso no impidió que en el Centro de Extensión (Centex) de la Subsecretaría de las Culturas, frente a la Plaza Sotomayor, se presentara el libro Lo que hay que soñar hay que vivirlo. Una crónica musical sobre El Macha de Cristóbal González Lorca.
- En conversación con el productor Lito Celis, el autor revisó parte del contenido de su obra: un escrito coral conformado por 32 crónicas vivenciales, la mayoría de González, que permiten perfilar, o hacerse una idea, de la vida y carrera artística de Aldo Asenjo, «El Macha», originario de Villa Alemana y líder de las bandas La Floripondio, Chico Trujillo y El Bloque Depresivo.
González reconstruye la historia en base a sus propias experiencias con El Macha (juntos han compartido escenario y diversos proyectos musicales, principalmente en Santiago) y a una serie de fuentes documentales, como registros de prensa escrita (cita, por ejemplo, un reportaje de la extinta Zona de Contacto) y televisiva.
- Así, el libro parte con el fenómeno del vidente de la virgen en Villa Alemana. El escritor asegura que ese acontecimiento de «manipulación mediática, en plena dictadura», fue clave en el origen de La Floripondio: una banda de ska y reggae «inicialmente incomprendida», dijo; autogestionada y profundamente irreverente. Otro capítulo, para el cual se entrevistó con Asenjo, también refiere a la influencia del grupo argentino Sumo (banda de cabecera de El Macha).
En otras crónicas, González cuenta sobre las primeras tocatas de «La Flori» en la exmicro de Villa Alemana, y luego en Santiago. También, del surgimiento de Chico Trujillo, cuando la banda estaba de gira por Alemania y tocaban cumbia en sus ratos libres. El proyecto cumplió recientemente 25 años y fue la punta de lanza de la «nueva cumbia chilena».
- ¿Y El Bloque Depresivo? Como su nombre lo indica, el grupo dedicado principalmente a la reversión de valses y boleros partió como un segmento en las presentaciones de Chico Trujillo (en él tocaban «Sin excusas», por ejemplo). Posteriormente, tomaría vida propia. Y, al igual que los proyectos anteriores de El Macha, consolidaría su propia audiencia, a tal punto que el próximo 20 de diciembre agendaron su primer concierto en el Estadio Nacional.
Según el autor, la originalidad, innovación y curatoría de Asenjo lo han convertido en un personaje excepcional en la escena musical chilena y mundial: «Rescata un repertorio clásico, perdido, y lo resignifica», apuntó. Para González, la figura de El Macha es comparable a la de Violeta Parra y Víctor Jara, solo que «todavía estamos muy cerca para poder verlo».
Breves regionales
- La Cámara de Diputadas y Diputados declaró admisible el proyecto de reforma constitucional presentado por el el diputado Jorge Brito (FA), que busca cobrar a las navieras un royalty portuario de US$ 2 por tonelada de carga transferida, para financiar proyectos de infraestructura en las ciudades y regiones con puertos. Ahora la iniciativa será discutida en las comisiones de Economía y de Constitución.
- La seremi de Salud Lorena Cofré y la Delegación Presidencial Provincial de Los Andes retiraron 2.500 neumáticos fuera de uso desde el parqueadero Triángulo Spa, ubicado en Los Andes, para prevenir el desarrollo y reproducción de Aedes aegypti, un mosquito transmisor de enfermedades como el dengue, zika, fiebre amarilla y chikungunya, y que en 2024 fue detectado en la comuna.
- Fe de erratas: este medio publicó la noticia «ASMAR asume restauración del emblemático ascensor Artillería en Valparaíso», dando cuenta del convenio suscrito entre la estatal y el MOP. Sin embargo, aunque el astillero desarrollará los estudios de ingeniería, aún no está zanjado si ejecutará, o no, las obras. El seremi MOP, Dennys Mendoza, dijo a RVL que «se está revisando en términos legales la factibilidad de que ellos mismos pudieran posteriormente concretar las obras».
¿Dudas, comentarios? Escríbeme a aquivalparaiso@elmostrador.cl.
Inscríbete al nuevo Newsletter Aquí Valparaíso de El Mostrador, y súmate a nuestra comunidad para informarte sobre los temas más importantes de tu región.
